Labor of Love
Yale School of Architecture
Spring 2020 Advanced Studio
Critics Pier Vittorio Aureli with Emily Abruzzo
Partner Serena Ching
Published Kitchen Sink Realism, Retrospecta 43
H.I. Feldman Nominee
	
	
	
	
Our project aims to challenge the privatization and compartmentalization of human life by creating spaces that facilitate ways in which community members can begin to renegotiate spatial and social boundaries. In San Cesareo, property lines take physical shape through fences and walls that privatize thoroughfares and monopolize outdoor space. Commoning begins when neighbors are willing to tear down fences and walls in their backyards, driveways, and adjacent lots. The former walls become paths that connect the settlement’s interstitial alleyways. Existing palazzinas are renovated to facilitate work-live spaces for productive income. The excess revenue from this enterprise is used to build modular structures to socialize and externalize rituals surrounding care and production. Ultimately new civic elements serve as markers for customs that overlap reproductive and productive labor.

 
 
 
 
Site: San Cesareo
San Cesareo is a town and comune bounded by Via Casilina and the A1 ring highway southeast of Rome. In 1929, the Fascist government incentivized ex-military families to locate to San Cesareo by building single-family houses and public amenities along its central spine, subdividing strips of agricultural land behind each house. Traces of early social housing and communal ovens (forno comune) can still be found in the settlement today. In the 1950s, properties were legally sold to families who have been inhabiting the settlement, as well as to developers who then subdivided and aggregated lots until the settlement was formally legalized in the 1990s. The result is a layered but disconnected settlement with a dense central area in the south, developer led housing in the west, and agricultural strip lots for small cultivation in the north.
 
 
A Crisis of Care
Fully enclosed reproductive care within the home has led to the isolation and exploitation of women and their invisible, unpaid domestic labor. Instead of the feminisation of waged work, we see the ‘masculinisation’ of women’s labour. Both men and women are required to work more than ever, and for women, it’s impossible to see where work starts and ends. Immigrant workers are forced to leave their families for great lengths of time to live with their clients. The nature of care requires great physical, intellectual, and emotional investment for these households to the point where pure monetary compensation becomes forms of exploitation. 
 
 
 
 
The Proposal: Diffused Home
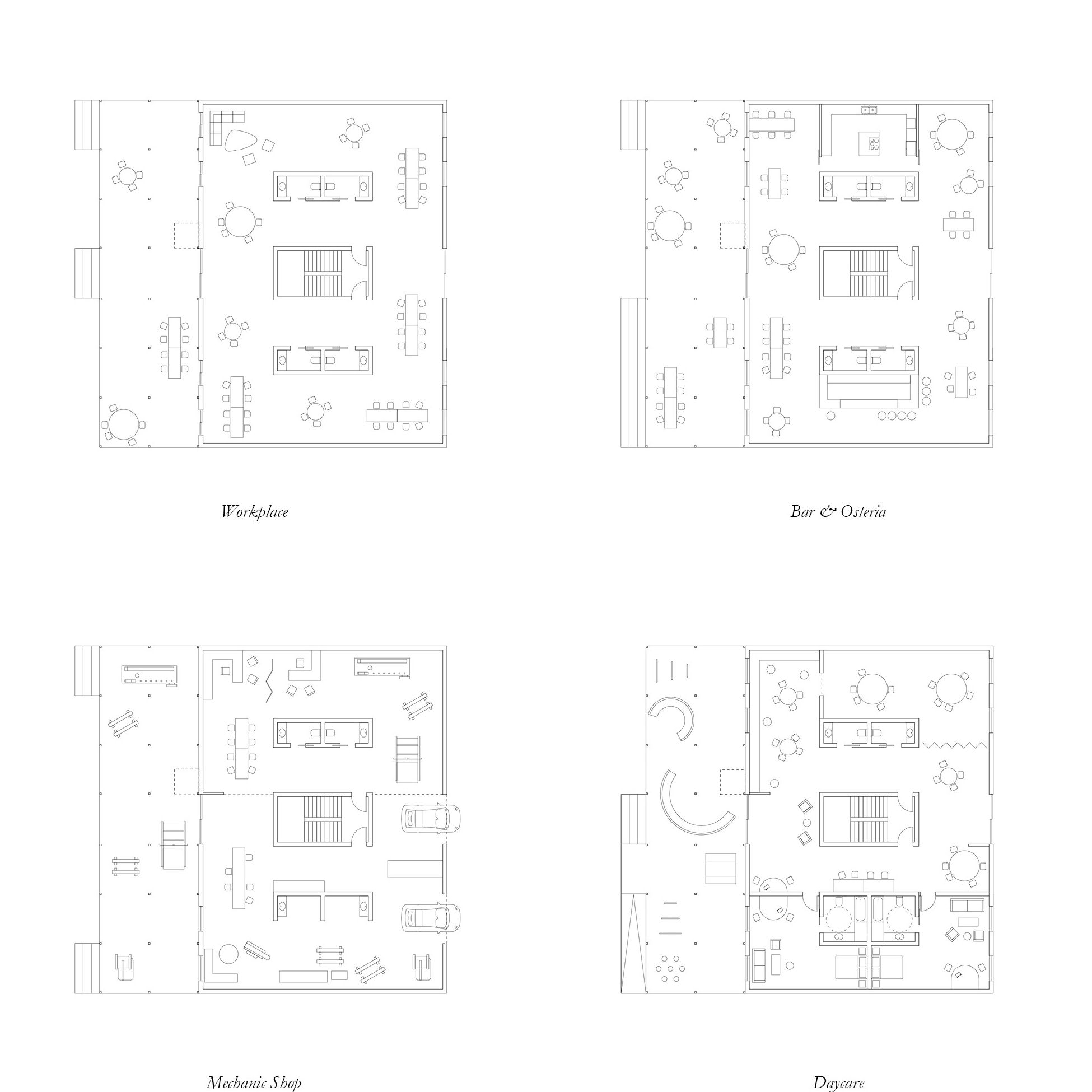
We need to challenge the spatial and social enclosure of care within the home and the nuclear family by eroding the boundaries between the private and public. Our proposal reconfigures domestic space and externalizes them into diffused elements of care beyond the confines of the home. Our commoning proposal consists of two strategies. The first begins by providing basic building skills to self-organize and renovate existing palazzinas in San Cesareo. Our strategy begins with a manual to provide basic building skills to organize the renovation of existing palazzinas.
 
 
 
 
The Proposal: Construction Manual
The second part of our strategy is the construction of elements. Ultimately, as needs arise and productive income is generated, households can build new pavilions and barns for care and production. The addition of new facilities that are typically inside the house introduces the idea of the diffused home, where labor is made visible and care is socialized. We work with the scale and density of each of the three sites through the construction manual and a kit of parts
 
 
Regional Strategy
The regional strategy begins by households identifying underutilized palazzinas and renovating them for communal work-live spaces. Households who wish to participate are required to tear down fences to provide access and allocate part of their backyards to the common area. At the scale of 4-6 families, we Introduce kitchen gardens, sheds for storing produce, shared kitchens + ovens, then, common laundry spaces. At the scale of 6-12 families, socialized child and elderly care and community health clinics are built.  Ultimately, the street is reclaimed as collective space that connects the households engaged in mutual monitoring and maintenance.  In the north, early phases common and depave a residential street, introducing production barns and a plinth for the market. At the full realization of Commoning, the plaza becomes an active place for food production, sharing and learning. The drawings depict a full fledged transformation of the entire community,  diffused tapestry of small scale commoning interventions.
 
 
 
 
 
 
 
 
The South
The dense historical palazzina block is ransformed as the path takes the places of fences and elements congregate around the back courtyard as care is socialized outdoors. At the full potential of commoning practices, the area is imbued with diffused domestic and care elements within interstitial spaces. The historical palazzina block is transformed into a backyard of commoning practices over time.
 
 
The West
The developer block is transformed into front yard boulevards for pedestrian use. The existing fabric that is dominated by parking spaces and private driveways is eroded by renovated palazzinas and front yards dedicated to communal cooking and cleaning, which is mutually operated by these households.
 
 
The North
The Agricultural Strip lots are used for commoning practices that generate productive income and overlap rituals of cooking and eating. Early phases common and depave a residential street, introducing production barns and a plinth for the market. At the full realization of Commoning, the plaza becomes an active place for food production, sharing and learning. 
As production elements are added, it transforms the area for for settlement-wide rituals and festivals. The sparse agricultural area becomes transformed into a landscape for commoning production 
 
 
Labor of Love
The phrase ‘labor of love’ traditionally implies emotional exploitation and social sacrifices on the part of women and caretakers. We believe through the lens of commoning, design should challenge the enclosure of care, in order to make visible and socialize it through diffused domesticity. Commoning is a process that enables us to reclaim the capacity to control our lives, the means of our reproduction, and how we collectively manage our resources. Through the new framework, the Labor of Love describes how people grow to become socially and emotionally committed to one another in a community.